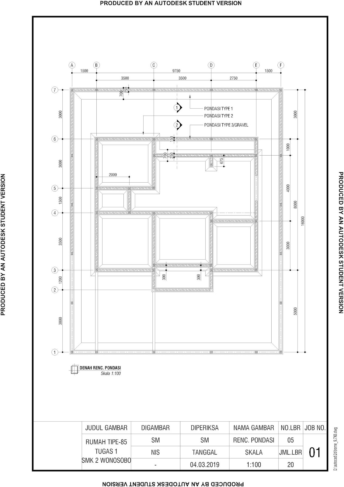
bertemu lagi, pada kesempatan hari ini saya akan membagikan sebuah gambar rumah tinggal
dengan ukuran bangunan 9.750m x 8
dengan rincian sebagai berikut
- Kamar Tidur = 2 bh
- KM/WC 1 bh
- Ruang Keluarga 1 buah
- Ruang Tamu 1 buah
- Ruang Kerja 1 Bh
- Dapur menyatu dengan Ruan makan
- serta 2 Teras, yaitu teras depan dan belakang
mungkin ini dulu yang bisa saya bagikan next saya akan bagikan lagi gambar yang lain
jangan lupa mampir lagi
subscribe youtube untuk mendapatkan tutorialnya di sini SM
#autocad #autocad 2019education #autocad2019LT #rumahsederhana #sederhanarumah #rumah #sederhana #gambarkerja #gambarrumahlengkap
















Tidak ada komentar:
Posting Komentar